城市是一本打开的书
恒裕深圳湾,深圳湾少有的公寓可售地块,250米超高层、高宽比超薄、标准层超多、结构机电超复杂等等,以持续刷新记录的设计,惊艳湾区。华阳国际,主导参与恒裕金融中心项目总体规划、建筑方案、施工图设计全程。惊艳背后,是对城市资源的重新解读,是对全球人居的大胆预见,是无限价值和无比激情的挑战。项目实景图(在建)
恒裕深圳湾,是恒裕金融中心综合体东塔,坐落深圳南山后海金融区,也是全深圳生态环境最好的城市核心区。

项目区位
基于后海金融区从东至西、从低至高的规划,恒裕金融中心作为“深圳湾客厅”的背景建筑,成为由市内至海滨的门户。一开始,华阳国际设计团队就将建筑设计逻辑与城市资源价值精准匹配,将四个地块化零为整,最优化分布各业态位置。其中,朝东两个地块,拥有一线无遮挡海景,规划为恒裕深圳湾,250米双塔结构,中央C位,不负湾区资源。
©ROCCO
02
真正的城市地标,理应塑造城市轮廓,让建筑群之间建立对话。纵览后海天际线,350米高的深圳湾1号、392.5米高的春笋(中国华润大厦)分立左右,其余建筑散落其中,缺少中间的自然过渡。

沿海天际线

沿海天际线实景图(在建)
从城市设计的角度出发,项目精益求精,经过多次调规,将双塔楼高度设定为250米,衔接左右两座地标,共同构建深圳湾一线更开敞、更流畅的城市视野。

©ROCCO
03
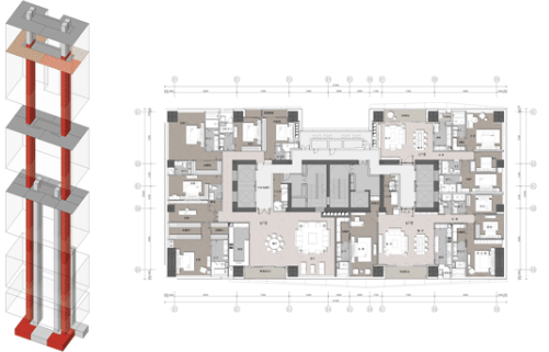
当高密度土地开发成为一线城市常态,当立体城市成为全球人居趋势,如何深度剖析立体建筑的竖向价值,成为当下设计的时代命题。恒裕深圳湾,最大限度发挥湾区美景价值逐层递增的逻辑,以前瞻性设计手法,在单一楼栋中,实现了从低区70平米,到高区580平米区间的面积跨越。

标准层变化
同时,根据每一平面的精准定位,设置户型产品的大小和产品分布,让每一高度,拥有最合适的面积尺度、最大化的价值,也让整个项目标准层超丰富。
各标准层平面图

©ROCCO
04
面对如此优越滨海的资源,设计尊重每一户型的海景视野,以11:1的高宽比将建筑形体做到超薄,核心筒高宽比达到36:1,成为目前深圳高宽比最大的公寓,重塑高端人居的空间体验。
▴框架柱内设置了较多型钢,且大部分楼层梁为型钢混凝土梁,5个避难层中4个避难层均布置了Y向4榀伸臂桁架,5个避难层上加阻尼器
在外围框架柱内设置足量的型钢,以提高其竖向刚度,并在避难层均匀布置伸臂桁架,极大增强塔楼侧向刚度;为了保证居住的舒适性,在避难层上也设置了阻尼器,进行风振控制。华阳国际用一系列结构技术的超前探索,让看似不可能的挑战,都完美落地。

结构体系(在建)
05
一个经典的居住空间,绝不是冰冷的城市名片,也不仅是少数人私藏,而能够与城市生活汇聚为一个有机体。
在整个超复合的城市综合体里,西北角布置300米高的办公及酒店塔楼;西南地块布置30米高、形态舒缓的商业,通过地上三层及地下二层的联通布局,连通地铁站、地下商业以及周边,实现动线完整和交通流畅,居住于此,在居住、商业、办公等场景,自在无缝切换。


©ROCCO
同时,在近人尺度上,中央绿地形成内聚性的多层次绿化休闲空间,打造立体、生态、活跃的滨海生活体验。
06
细节见真章,方案将对居住的美好愿景与建筑的精确度融入设计,打造电梯分区系统,为让每位居住者都有便捷、舒适的归家体验。
同时,项目首创独立入户系统,让高层户型实现独门独户,在都市之中,打造属于家的静谧。
垂直电梯分区
不止如此,全球大师智慧集萃,在室内设计等方面尽善尽美,为城市贡献引领未来的人居作品。

在中国最活力的城市深圳,一个超级湾区的设计叙事,一次划时代的世界作品,华阳国际不负期待,从规划、方案到施工图、结构机电等全流程全维度深度参与,恒裕深圳湾,值得期待!方案设计单位:华阳国际设计集团、ROCCO许李严建筑师事务有限公司 联合设计