湾区经济崛起,深圳作为核心引擎,已经成为全球经济重要增长极;深圳湾超级总部基地是深圳唯一以“超级”命名,被赋予最高规划标准的总部基地,正引发城市生活的全新变革。
SIC超级总部中心,由深圳地铁集团与万科集团倾力打造,深圳湾超级总部基地内业态复合度最高的综合体项目,项目从“超级自然生态”、“超级景观资源”、“超级城市底盘”、“超级产业总部”、“超级生活方式”及“超级城市地标”六个维度来打造未来超生活体验,总体量达到60万平方米,包括358米超甲级写字楼、深圳最高的香格里拉酒店、高端圈层社交平台“SIC65商务会所”、深圳首个科技赋能的购物中心、以及高端公寓等。

华阳国际作为超高层塔楼的立面设计以及平面优化单位参与其中,在尊重项目精神的基础上,从整个建筑形体比例进行推敲,打造独特的空间亮点,把控每一处细节的具体尺度,以寻求城市核心地标系统性、独特性的建筑表达。
01 形体
湾区C位,技术与美学融合的超级地标
作为深圳湾超级总部基地首席地标,SIC肩负引领未来湾区城市天际线的责任。
项目多种业态垂直叠加,功能复杂,如何构筑经典的建筑形体与表皮肌理,且与内部功能相吻合,其背后不乏缜密思考。

在超高层塔楼,设计反复打磨腰线比例,通过塔冠高度研究、建筑中部的收分位置以及角部开合的反复推敲调整,突出挺拔的建筑形象,打造城市名片的地标形象,既是对深超总未来的展望,也是对设计精神的最佳诠释。

腰线对比
同时,用统一的建筑语言,从地面延伸到空中,串联竖向各功能,将全场景的动线规划收纳于统一的韵律变化之中,打造契合时代的经典气质。

02 亮点
358米高空,自然与生活场景的有机聚合
项目希望通过多维空间的全新尝试与解构,在高空之上,创造一处具有多重可能性、充满互动的叙事空间,引领未来超级生活方式,将优质的资源公共化。
项目东面是超总湾心,正面是深湾绿谷和未来城脊的十字交点,南面是深圳湾的蔚蓝海岸线,坐拥深湾超级自然景观。

设计利用这一积极因素,结合天际酒吧、屋顶停机坪,在塔楼顶打造“湾心之眼”云际观景平台,也是国内唯一一个处于350米高度以上的、临海开放式观景平台,把建筑屋面空间打造成为一处集独特性、体验性、公共性、场景性和艺术性于一体的城市云端休闲目的地。

城市之上,不再只是高耸入云的玻璃幕墙,还有都市人文及自然景观的直接接触。新的空间理念与日常生活相遇,在自然变幻、光影消散间,人们可以更自由地呼吸、触摸、感受。



东立面塔冠立面图

从地面到高空,从喧闹到安静,自然而然地开启生活的仪式感,与深圳湾畔充满生机与活力的空气和景色产生互动,让SIC成为激活片区的能量场。

全息投影
03 细节
精筑细节,创作与城市精神的深度融合
项目希望将城市的精神属性融入建筑创作,秉承建筑、人、生活相融相生的积极态度,以超越时间的前瞻态度,考究材料、尺度每一维度,精筑节点、灯光每一细节,打造独特的城市生命体。
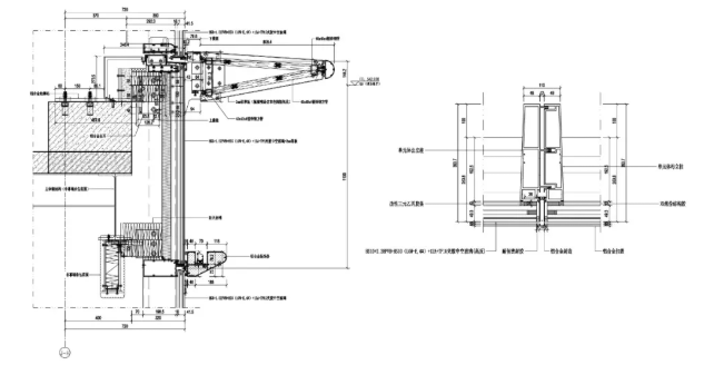
塔楼采用横明竖隐的幕墙形式,横向线条以中部为基准,向两侧收缩,以渐变的方式凸显建筑立面的体量感,增强建筑自身风格。层间第二条杆件在强化中部阴影关系的同时考虑灯光的隐藏设置,以井然有序的逻辑把控和丰富的细节组织,进一步回应建筑整体感与延展性。


左:横向线条 右:玻璃幕墙节点
塔楼转角以简洁的金属线条与干净玻璃幕墙为主,强调纯粹、通透、面向未来的建筑气质。


角部层间节点

角部转角节点
在两侧腰线的设计过程中反复研究并调整腰线截面尺寸,使其相对于350多米的塔楼比例协调,更为突出。过程中,采用不同的材料与形式进行对比,经过反复样式推敲与灯光设计确定截面形式及材料,使整个腰线在夜晚可以达到一个最佳的视觉效果。


腰线截面

节点控制

样板段控制
在视觉样板确定挂样之前,先通过1:1小样进行材质与灯光尝试,确认杆件的具体做法与挂样材料,以保证视觉样板挂墙后的效果。

1:1实体样板尝试

左:实体样板 右:灯光测试
在可预见的未来,SIC将以立体高效的城市空间,引领综合、新奇、品质、便捷的未来生活方式。
而华阳国际身在其中,创作的蓝图逐渐铺开,关于城市未来的前瞻探索也在逐渐被验证,目前方案还在深化中,期待未来!
项目档案
项目名称:SIC超级总部中心
项目类型:复合型TOD综合体
项目地点:深圳,深圳湾超级总部基地
用地面积:54,000m²
总建筑面积:461,000m²
超高层塔楼计容面积:189,000m²
设计时间:2020起
建设单位:深圳地铁集团、万科集团
超高层塔楼立面设计单位:华阳国际
施工图设计单位:欧博AUBE
幕墙顾问单位:阿法RFR
幕墙深化单位:金粤
服务范围:超高层塔楼立面方案设计