设计精进,不只是创作实践,也在于研究。华阳国际20年,始终以设计研发为龙头,研学不止,形成涵盖全专业、全流程的技术研发成果,持续塑造产品力。C°研究,本次聚焦影响项目成本的重点——地库设计,来自符润红总的深度好文,透视客户的成本关注点,结合实例,详细阐述设计阶段地库成本控制要点,探讨如何创作更高溢价的建筑产品。
地库优化设计
Basement Optimal Design
—
前言
—
随着现代社会的土地资源越来越稀缺,如何在有限的土地上解决更多的停车问题,同时兼顾地库的品质和成本,其关键在于减少地库的无效成本。什么是地库的无效的成本?多余的土方、过高的层高、多余的地库范围、层数、不合理的柱网形式、不合理的人防设计等等都将导致无效的成本。那怎样的地库设计才算好的设计呢?明亮的停车环境、良好的通风、阳光的车库、简捷的行车动线、回家入户有仪式感、能一次顺利出车、搬家货车能到达电梯厅等都是地库好设计的其中一些要素。要减少地库的无效成本,需要先从地库造价的基本组成来分析,地库的成本大致包含以下四方面(图1):1)基坑开挖土方量,2)基坑支护,3)地库主体建安成本,4)地库基础、施工工期、施工难度及施工组织等。
1 地库造价的基本组成
土方量与基坑支护这两项均与地库的竖向设计息息相关,而地库主体建安成本将与地库的建土建工程(建筑面积、地库层高、停车数量)、装饰装修工程、人防工程等直接相关联,而第四部分因项目情况相对会比较复杂,本文不做阐述,本文将重点从地库的竖向设计、平面设计和精细化设计等三大方面来重点分析如何控制造价提升品质。
地库优化设计
—
地库竖向包含场地竖向设计和地库剖面设计两大方面,在地库总高度一定的情况下,场地竖向标高的确定将直接影响地库的土方开挖量和基坑支护,决定了地库整体下挖的深度,从某种意义上可以说地库剖面设计(地库的总高度)是微观内在决定因素,而地库的场地竖向设计(场地设计绝对标高)是宏观外在决定因素。
1.1地库剖面设计
地库的总高度为地库各层的层高之和,地库层高=梁高+设备管线高度+净高+面层厚度,梁高与顶板覆土、荷载情况、结构形式相关,实际项目中应根据实际情况合理确定结构形式和梁高,设备管线高度与结构形式、机电路由等相关,而净高与项目品质直接相关联,不同的项目品质会有不同的净高要求,实际项目中应根据甲方要求和项目楼盘品质确定地库净高,面层的厚度可以通过合理的选用地下汽车库楼板、底板的构造做法来控制。
1.2场地竖向设计
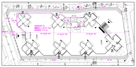
从图2可以看出:地下室总高度一定时,场地设计绝对标高越高、顶板覆土越少,下挖的土方量将越少!由此可见室外场地设计绝对标高的确定变为尤为重要,但同时值得关注的是:随着室外场地设计绝对标高的上升或下降,地库的性质也将发生改变(根据地库的露出地面的多少与整体地库的关系确定),从地下车库变为半地下车库甚至架空车库,随着车库性质的变化,相关的指标也将发生改变:如建筑层数、人防指标、计容建筑面积等等,如何平衡场地竖向的标高将是一个综合的过程,一般会将场地标高的确定是否会影响到计容面积的增加来作为一大原则。下面将结合深圳某项目来具体分析如何通过优化场地的竖向设计来节省造价:
案例:深圳某项目规划要求停车1860辆,架空车库面积21502㎡(该层住宅大堂面积合计441.31㎡),地库总建筑面积64271.77㎡,通过场地设计绝对标高的优化,将优化前的场地设计绝对标高20.5优化成三个台地,分别为22.5、21.0、19.9,从而成功的利用深圳当地的政策将架空车库变成半地下车库。相应的指标发生如下变化(如图3,4):优化前应建人防面积21502㎡,住宅大堂架空车库层需增加计容面积441.31㎡;优化后应建人防面积5200㎡,住宅大堂在半地下车库层可不计容,提高住宅的可售比和使用率,增加销售亮点。
3 优化前架空车库情况
4 优化后半地下车库情况
优化后节省造价2481.47万元,这里仅计算因场地标高变化、层高优化引起的土方量、基坑支付和地库主体建安成本的显性造价(不计入因提高可售你和使用率带来的隐性造价),其中造价土方量按150元/m³、人防地下室相对普通地下室增加600元/㎡来计算。
地库平面设计
—
地库平面设计包含:1)地库规模、范围与轮廓;2) 地库柱网设计;3)地库平面布置;4) 车库出入口、车流线布置;5) 坡道、车道;6)人防设计。
2.1地库规模、范围与轮廓
地库的规模与停车数量相关,其范围与轮郭的确定应结合规模并以提高停车效率为目标导向,通过大量的工程实际案例分析得出:效率高的地库其轮廓方整、少异型、地库柱网与上部建筑柱网正交、车位布置紧凑,无效车道少、双边车道多,塔楼靠边布置且塔楼无用空间进行了适当的处理,地库轮廓尽量与原有塔楼竖向构件重合(如图5,6)。反观效率低的车库:轮廓不规整、地库狭长、柱网与上部柱网斜交、斜交的塔楼均包含于地库范围内、无效车道、单边车道多、塔楼下方无效空间多,应尽量避免。
6 惠州某项目,31.51㎡/辆
2.2地库柱网设计
车位的大小直接影响到柱网的大小,对于普通车位规范规定了车位大小和相应通道宽度,随着人们生活水平的提高,豪车进入普通百姓的家庭,这也相应的提出了不同品质楼盘车位的大小会有差异。
根据市场的各种豪车的基本数据,分析得出豪车的基本车位尺寸:(2.5~2.7)米×(5.4~6.0)米,以此来作为设计地库柱网的依据。地库柱网通常来讲有常用的三种形式:大柱网、中柱网和小柱。
一般来讲:高档豪宅或中高档住宅适合选用大柱网,中柱网由于受一个方向柱网变小的影响,一般适合用于中档或普通住宅的狭长型地下室或是行车路线单一的方形地下室,而小柱网一般用于普通住宅的经济适用型地下室,这三种柱网的经济比较及各自的适用范围以一定范围内相同数量的停车位具体分析(图7-9,表1):

7 小柱网的经济比较及使用范围
小柱网:2060.24m²,停车96辆,平均车位面积21.465m²/辆
8 中柱网的经济比较及使用范围
中柱网:2035.04m²,停车96辆,平均车位面积21.198m²/辆
9 大柱网的经济比较及使用范围
一般大柱网:2047.68m²,停车96辆,平均车位面积21.330m²/辆

表1 三种柱网的经济适用范围
当然,柱网与车位的关系也将影响车位的使用和地库的品质,在柱位布置时要充分考虑到柱子对车位的影响,避免出现柱子影响车门开启或影响出车,通过分析研究后得出结论:对普通车位当车位车头距离柱子边800~1000时同时能满足出车顺畅及车门开启方便的要求。
最后,通过柱网设计能通过塔楼的楼间距提前预判地下室范围的合理性(以8100柱距为例):(1)当塔楼底部无封闭空间,停车效率较高时,塔楼之间的最佳距离是N*8.1+6.8X2米,N为奇数;(2)当塔楼底部无法停车或停车效率较低时,塔楼之间的最佳距离是M*8.1米,M为偶数。
2.3地库平面布置
地库平面布置是影响停车效率最重要的因素,通常地库的停车模块分为如下四种:(1)垂直双边停车(2)垂直单边停车(3)平行单边停车(4)转角停车,以一个模块停3辆车为单元研究,其停车效率如下:垂直双边停车>垂直单边停车>转角停车>平行单边停车。
车位的布置与车道的关系也极大影响着停车效率,同样面积的地库,车位布置尽量长边双向停车避免短边单边停车,减少车道面积及避免无效的车道,避免过多过长的尽端停车布置。如图10所示,能清晰的看到长边双向停车对停车效率的贡献。
10-1 长边双向停车对停车效率的贡献
面积:3116.96m ²,车位:122辆,停车效率:25.55
10-2 长边双向停车对停车效率的贡献
面积:3116.96m ²,车位:128辆,停车效率:24.35
面积:3116.96m ²,车位:134辆,停车效率:23.26
2.4 车库出入口、车流线布置
如图11所示,出入口与地库的位置关系:(1)设于地库内(2)附壁式坡道(3)独立式坡道,如下图示:
11-3 独立式坡道
优先采用包含在地下车库范围内或附壁式坡道,以减少外墙面积以节约用地,车流线布置:车行主流线宜平行塔楼,能将入户大堂、车行出入口、车库坡道串联在一起,行车中方便快速识别,车流线顺畅、清晰、简洁,车流主线应为双向车行流线,并应关注客户归家动线,加强车位的步行可达性和交通便利性。
2.5 坡道、车道
坡道与车道的位置关系:(1)坡道垂直车道(2)坡道平行车道,通过下列图示可以看到:平行车道的坡道效率低于垂直车道的坡道,故在实际工程中推荐使用坡道垂直车道的形式(图12)。


12-2 坡道平行车道
坡道与坡道的位置关系:(1)坡道错位(2)坡道叠加,通过下列图示可以看到:坡道错位效率低于坡道叠加,故在实际工程中推荐使用坡道叠加(图13)。
13-2 坡道叠加
2.6 人防设计
人防作为战时掩蔽场所,应尽量避免对平常使用的影响,为此人防的选址和布置就显得额外重要,一般来讲:人防区域宜集中并不打断非人防区域,有分期建设时,尽量合并建设,主要出入口应在地面塔楼投影范围之外并尽量减少对地面景观的影响(图14),同时尽量遵循如下原则:集中靠边墙并位于最底层尽可能采取叠加共用主要口部的原则,并以人防门少、人防墙少为原则。
14-2 人防区域示意图
地库品质
—
随着人们生活方式的改变,地库越来越成为决定一个楼盘的品质的重要方面,阳光地库、自然通风等有效的提升了地库的品质,通过采光设计、绿化设计、或利用场地高差形成自然通风提升地库的舒适度。
同时通过营造地库入口大堂的氛围来创造地库入户的仪式感,为此大堂入口建议:(1)朝向车道敞开并不宜在电梯厅门口设置车位,(2)车道应避免正对大门,(3)人防口部、设备机房管线应避免对地下大堂的影响,(4)设备管线主干线优先设于车位上方避免设于车道上,集水坑、排水沟布置在车位后方。
地库作为平常感知不到的部位,但地库的成本又是巨大的(一般占地库建安成本的30%左右),一不小心就会发生大量无效的成本,这就需要设计师们想尽办法,通过有效技术措施进行精心设计,也许你一个有效的措施就能给发展商省下几十上百万甚至成千万的造价,为此需要设计师门需要掌握基本有效的技术来优化成本和提高品质!
参考文献
[1].车库建筑设计规范:JGJ100-2015[S]. 北京:中国建筑工业出版社,2015.
[2].王山宝,吕岩. 工程项目在设计阶段的造价控制[J].山西建筑,2008,34(25):258-259.
受邀在万科成本部分享地库优化设计经验