

第18期华·沙龙现场。上海都设建筑设计有限公司执行董事总建筑师、国家一级注册建筑师凌克戈主讲。
5月19日下午,第18期华•沙龙在华阳国际深圳公司大阶梯空间举行。本期华•沙龙邀请到上海都设建筑设计有限公司执行董事总建筑师、国家一级注册建筑师凌克戈主讲,我们将他的演讲内容稍作整理,在此与大家分享:
谢谢华阳国际的邀请,今天我讲的题目是“行走与奔跑”,为什么是这两个词,因为在2001年到现在的工作过程中,我逐渐对建筑有了一种认识——建筑,绝对不是速成品。要做好一个建筑,一定要有良好的基础,如果还没学会走就跑,很容易摔着。
2003年我一度开始迷恋扎哈那种很刺激的建筑设计,我开始研究犀牛软件(Rhino3DNURBS),现在回过头来看,那时是自己还不会走,就开始跑。当时做了一个三维曲面的方案,中了中国青岛海军博物馆的标,但是因为各种原因项目没有盖出来,如果放在今天,我是有能力把它做好的。但在2003年我当时的技术能力和施工状况下,要是实施出来了,今天来看,很可能就是一个笑话。所以我今天设计的所有的方案,都是在我的技术能力能掌控的范围内的。
建筑从设计到建造是一个严谨的过程,一切哗众取宠的投机行为都会在时间的考验下现出原形,建筑师的责任感在于对业主负责对社会负责,所以踏踏实实的打好基础再去天马行空,走稳了再跑。
一、历史上伟大的建筑一定是精致的
马岩松的哈尔滨大剧院最近很火,对于他来说终于有了一个完成度相当高的作品。但是之前他的很多设计都是不能很好地建成。这样的建筑师往往成为视觉中心,但从我们这些中国的商业建筑师团队所处的环境来看,如果都往那个方向去发展是很危险的。
我常常在思考,我们应该做怎样的设计?大学的时候,我看到贝聿铭的一句话——“历史上伟大的建筑一定是精致的”,当时我不理解,还认为他的建筑缺乏创意,比例也有问题,但是亲临现场,感受贝聿铭的建筑,它们充满着理性的思考和传世的精神。而且时间越久,越品得出味道来。最近上海浦东搞了个青年建筑师的设计竞赛,绝大多数都是虚有其表拗造型的方案,似乎不这样不足以脱颖而出,但是第一名是一个理性的成熟的方案,这很好的给青年设计师上了一课。
我们看看2000年前万神庙,再看现在我们的建筑,即使科技高度发达,却再也无法达到当年万神庙的高度。事实上我国现在90%的建筑都是很粗糙的,甚至现在的建筑设计和建造质量上比不上日本1970年代的建筑。我最近每年去日本七八趟,曾在丸之内的两个街区拍了2000张照片,仔细研究日本当代建筑精巧的地方,正是这些细节让我感觉,我们的路漫漫,其修远兮。我们这一批建筑师应该努力的去打好基础,做不成西施,也不能东施效颦。

二、施工图也是设计!
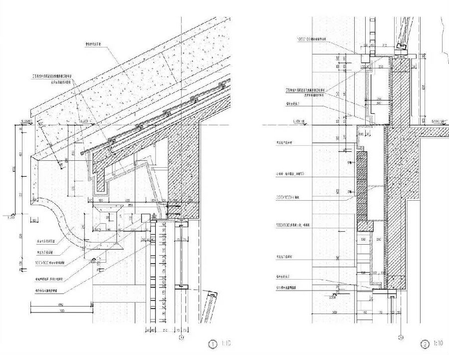
案例一:虹桥坊
虹桥坊在扬州瘦西湖的门口,项目比较成功的地方在于两点,一是我们用现代的幕墙体系来表达传统的建筑,二是我们采用了可控的手法来做这个项目。

立面最难解决的是青砖的泛碱问题和木材外墙的防水问题,由于为了保证进度和施工的精度,整个建筑采用幕墙的形式。

左边是上部剖面节点,可以清晰的看到木材是采用干挂的形式,整个建筑的防水是和木材、青砖脱离的,这样即使青砖和木材没密封也不担心会漏水;右边是青砖的做法:在墙体外浇筑了一个基础,青砖的重量主要靠它承担,然后青砖每隔一段用铁片和墙连接,青砖和基层是脱离的,自然不会泛碱了。

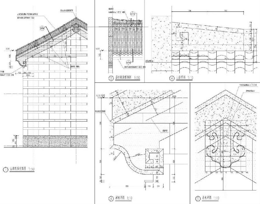
设计中有扬州老建筑常见的风火山墙,用传统的涂料加瓦片的方式是做不好的,不仅易脏而且也和比较现代的整体风格格格不入,因为传统的山墙都比较薄,而设计中有四层的建筑实在太不协调。所以我们采用石材的扣件,保证平整和圆滑,所有的勾线都用石材来做。
整个外墙使用幕墙体系,难点就在于传统符号的运用以及施工,对此我们的团队也是结合工艺做了独特的节点创新:采用了镶嵌的做法将悬鱼和勾边做成一个灰色的石材构件镶嵌在木化石的墙面上,压顶是一个整体的石材构件卡在墙上,保证了屋脊的整体性和墙面的平整。

案例二:光谷希尔顿酒店

费时一年半、3.3公里立面延展面1:100全覆盖、1000张A0的施工图。但这个项目的方案效果图和最后的建成照片相对比,还原度还是挺令人发指的。

我们采用的是勤能补拙的笨办法,施工图画到哪里,模型图就更新到哪里。做方案的设计师上午画的施工图,下午一位实习生就把每一根线翻到模型上。施工图的这个设计过程中,时刻在进行“再设计”的推敲:施工图并不是一个简单的制图工作,而是对方案的深化设计。
这个项目几乎所有的施工图设计人员都是方案设计人员,尽管很多人是第一次画施工图,但全程用三维模型对施工图进行同步更新来验证最终的效果,实践证明这是一个很好的方法。
结构机电和建筑的互动才能塑造完美的空间。设计之初业主提出要做绿色两星的酒店,公共区域的自然采光通风就成了最重要的一环。扩初时,建筑师就和结构工程师沟通要求直接把此部分做到施工图深度,建筑师根据结构图先进行室内空间建模,根据效果再与结构工程师进行讨论。之后整个大厅的室内设计也是由建筑师来完成,除了外层装饰,就不需要再做装修了。

设计中还有一个花费了建筑师和机电工程师大量心血的地方:在酒店的任何地方,即使在最高的客房处你也看不到任何一台设备。要感谢这个项目的结构和机电设计师们,建筑师的追求其实给他们添了很多额外的工作,但大家总是愉快的沟通协作,好的作品是所有设计师的共同努力。
还有一个很深的体会是,设计度完成度的高与低,是体现在幕墙转折度的交接上的。我们有60%的工作是在处理材料交接,尤其在转接的地方工人的技术就会遇到很大问题,所以我们非常重视这个工作。
方案设计人员画施工图完全可以画出最好的施工图,因为他们对设计的效果的追求是高于一切的,这也是这个项目的一大实验成果,我相信“施工图也是设计”绝对不是口号。
三、一体化设计
案例一:鲅鱼圈金泰文化广场
这个项目包括保利大剧院、图书馆、文化广场以及标志塔,建设投资7亿、是不折不扣的市政大型公建。这是我们第一次尝试一体化设计。
在这之前我从来没做过大剧院和图书馆,都设也没做过,这是一个业余设计,也就是常说的“私活”,在这之前我只做过方案,但做的过程中我成了总设计师,而不仅是建筑设,我们总负责这个项目所有设计子项的设计及把控。在这样的情况下,把方案控制在自己的实施能力范围内,是高质量的建成的前提。

很多建筑往往面临内外脱节的现象。而我们认为建筑应一体化的同时考虑到建筑和室内的关系与效果。

主要的创作是外立面和大厅空间,这是个人建筑师比较拿手的地方。从一开始设计笔者就收集了青岛大剧院、重庆大剧院和宁波大剧院全套的图纸,一方面这些都是已建成的成熟的项目,从声学等方面没有大的瑕疵。当你遇到一个完全陌生的任务时,勇气很重要,然后通过一个项目成为这个领域的专家比完成一个项目更加重要,学习方法和学习能力最为关键!
设计的问题解决了之后就是协调和把控,作为个人,建筑师往往在图纸交出去后工作就基本结束了,然而最关键的恰恰是协调各设计单位和把控施工,这一点是“业余设计”不可逾越的鸿沟。
案例二:江阴嘉荷酒店

对于这个项目,如何把一个办公建筑改造成星级酒店是我们思考的重点。酒店设计是建筑设计中一个很有意思的门类,它难在流线,苦在协调,突出的是体验,建筑师常常退居幕后,所以我们一定要做好室内。

在长期的酒店设计时间过程中,我们认为一套全过程的总协调模式在中国是保证完成度的最好方式。总协调的工作就是在设计各个阶段向业主提交以上公司的进入时间以及工作节点,对提供的资料分配给相关公司,整理会议纪要。作为酒店设计的总控,还要提供室内及景观设计风格,对幕墙设计、室内设计和景观设计提供的图纸进行审核,然后在此基础上与这些公司配合协调。
从目前总体负责的几个建成项目来看,使内外和谐统一的都是一体化设计,不伦不类的都是只做了建筑设计的。无论富春山居安曼还是三亚柏悦,建筑师都是建筑室内一体化设计的,而在其它几个地方同样是丹尼斯顿,仅做了建筑设计,效果完全是天上地下。世界上真正的酒店设计大家比如克里希尔等都是建筑室内一把抓的。
案例三:南京白云亭文化艺术中心

2013年底南京白云亭文化艺术中心这个项目重新启动时,建筑师面对的是在短短三个月时间里都设及其配合团队就要完成这个2.6万平米的改造---将一个副食品市场改为集图书馆、规划展示馆、美术馆、市民活动中心为一体的文化艺术中心。项目成败的关键在于:能否找到一个合适的策略,保证施工方面对的是一个很容易理解并且单元化的幕墙方案,并且这个立面能够达到业主方、设计方对于造型方面的追求。
幸运的是,我们找到了这个平衡点并制定了相应策略:
1、轻
这是一个改造的项目,无论造价和时间都不允许大拆大建以及很多的加固,所以外幕墙首先要轻,这就拒绝了石材、陶板等重的材料,所以金属打孔板成为最佳选择,因为就算做的糙也有效果、内里可不管、接口简单可操作。

2、快
这个快有两个含义,一是施工要快,这就要求必须是模块化的外墙,尺寸必须一致,安装方法得简单和可复制,一个样板做好了所有的工人都能同时施工;二是作为既有建筑改造,墙体和幕墙最好脱开,这样墙体和幕墙可以尽量少的产生交集,土建的施工企业因为只有很少的工作量所以不可能是大公司,他们只需要做防水和保温,外面看不到他们的完成面。我们采用了“包裹”的做法来应对。
光谷希尔顿酒店的立面施工图400多张A0,但这个项目我们只制作了23张A0的立面施工图就保证了完成度,说明了貌似复杂的立面其实是可以通过精巧的几何控制来降低施工难度,这也保证了施工的快速性。
3、忍
必须在设计里考虑到易懂性并考虑足够大的容差,忍受施工的粗放。采用了折形的打孔板,一是让铝板比平的强度更高;二是接缝处在凹缝内不容易被看到;更为重要的是这种造型的铝板可以掩盖弧形墙面弧度不均匀。

战略和战术同等重要,这个项目战略上采取了合适的策略,所以战术上就很容易的达到了目的。
四、精细化与一体化的结合
我以武汉西北湖A地块为案例,将塔楼和裙房分类,对几个体系进行分析设计。

一般的设计流程,是从 1:50 到1:30到 1:25画下去,对这个项目我们做了另外一种探索:把塔楼的玻璃幕墙分为六种,裙房也分成六种,所有的构造方式在六种体系里出现。我们首先做1:30的图,在方案效果图阶段就和幕墙顾问公司一起合作研究这几种体系,然后在扩初阶段让幕墙公司放成1:2的图,再反推到1:30 和1:100,对于1:50的图只有需要特殊局部时候再画。这套图,施工单位和幕墙单位看起来一目了然,而且这个反推过程节省了我们30%的工作量。
大量的修改,都会发生在1:30和1:2后面两个阶段,还要拍回到1:50的图,这种反复改图的二次设计非常耗时,也容易和幕墙公司闹矛盾。所以这种模式,立面设计优先于项目整体进度,在1:30的系统详图控制了最重要的部分。在与幕墙顾问对接的深化阶段,就把握了整体与局部的效果。
五、结语
以前咱们一进学校,老师就会灌输千万别去设计院画施工图,不然你就完蛋了。进了华东院后,我一年可以做30个方案,当时做完就给施工图部门,自己不管了,很多项目建成后的效果也就很难让人满意。到了2005年,在上海青年建筑师评选中我只拿到铜奖,很困惑之余,我去看了一下资料,别人10个项目里有6个是建成项目。可以说当时的社会评价体系就开始发生了变化,你做方案再牛,和建成照片比就是没有竞争力,评委更愿意看建成照片。之后很多的评选都是“非建成项目不予参选”。这是社会评价体系的进步,我们得跟着它的步伐成长。
有一个根深蒂固的现象,大设计院尤其如此:最优秀的建筑师做方案,血拼拿项目,施工图和方案严重割裂。
还有就是价值观的问题,国内很危险的是,大家还没学会走就在跑,学的是扎哈那样时尚派的建筑。过去也有过后现代主义的异军突起,但很多牛逼的后现代主义的建筑现在没法震撼到你了,甚至有的建筑成为人类历史发展史上的笑话。我希望自己不会做出一个笑话。
近来设计院也有一种可怕的思潮:新的年轻人都在做曲里拐弯的设计。我不反对三维的曲线,但是这种项目你要有分析,你为什么这么做。最近的投标方案,一些方案是对价值观的巨大挑战,10个方案有9个是不知所云,不加分析的、很炫很酷的方案,请问它成立的基础在哪里?无论是社会、经济、建筑学乃至放大到人类社会学,能找出来它的价值是什么吗?花一堆钱做的建筑,实用面积40%都不到,而钱都花在这个造型上面,结果还做得这里漏水,那里豁缝——莫非这个造型的价值就是自己爽一把?所以我自己的价值观是比较倾向于保守一点,做精细的、可控制的设计。做好方案,更要好好地实施出来。如果实施得一团糟,就是对自己的不负责,也是对社会不负责任。
现在建筑师和业主常常被设定为对立的关系,其实不应如此,我们应思考怎么把我们的诉求和他们的诉求结合起来,创造出一个双赢的结果。也许结果比理想状态打了一点折扣,但一定比对立的双输更好。当你以这样的立足点和对方坐在一起思考问题时,很多问题都会得到解决。很多人抱怨建筑师没有话语权,其实是因为你只想说话,而不想听。我们在了解业主的想法和痛点的基础上做方案,首先去解决痛点,实在有的痛点无法解决,我们也可以用别的办法补偿它的损失,这样双方一定不会对立,建筑师的想法也会得到支持。
我们很多项目的造价是有限的,能找SOM和赫尔佐格的业主,都已经做好了花钱的准备。而找我们的业主的造价是介于中间位置的。我们需要让投资和设计工作匹配起来,如果把设计得的东西很贵才能达到High level,但是没钱变低水平就会变成恶性循环,我们只有用合理的预算做出好的效果才能形成良性循环。现在的投标环境中,比方案也比价格,而价格的低下必定导致只能简单应付的做一个设计,设计的不好以后设计费更低,进入恶性循环。而SOM和KPF的投入更大,费用更高,做的更好,有好的名声就可以收的更高并获得更多认可,他们就是良性循环的。所以要学习他们的做法。
要想有好的完成度,要常常下工地。现场施工配合是最难搞的,一是总包通常会改材料,这往往是最低价中标造成的;二是“不将就”,去到现场,木已成舟,咋办,我们依据做错的来重新设计弥补一下。我感觉中国建筑师能把建筑建好做什么事情都可以的,太考验综合能力了。在中国要高质量的完成一个大型项目,技术往往只是一个方面,更多的在设计之外。人很复杂,在中国的基建尤其复杂,要想高质量的完成,也许会触及到各方面的利益,建筑师只有游刃有余的全情投入,进退有据,做出好建筑才有可能。